產品目錄
91看片儿免费看
液體流量計
91看片视频免费
油流量計
91看片网站下载
橢圓齒輪流量計
電磁流量計
渦街流量計
蒸汽流量計
孔板流量計
旋進旋渦流量計
熱式氣體質量流量計
轉子流量計
浮子流量計
靶式流量計
氣體流量計
超聲波流量計
磁翻板液位計
浮子液位計
浮球液位計
玻璃管液位計
雷達液位計
超聲波液位計
投入式液位計
壓力變送器
差壓變送器
液位變送器
溫度變送器
熱電偶
熱電阻
雙金屬溫度計
推薦產品
聯係91看片下载免费观看
- 金湖91看片下载免费观看儀表有限公司
- 聯係電話:15195518515
- 在線客服:1464856260
- 電話:0517-86801009
- 傳真號碼:0517-86801007
- 郵箱:1464856260@qq.com
- 網址:http://www.zhongtaijixie.net
- 地址:江蘇省金湖縣理士大道61號
浮子流量計的結構工作原理
在流量測量中,浮子流量計是量大麵廣的產品之一。它具有結構簡單、直觀、壓損小、測量範圍大、運行可靠、可測中小流量及低雷諾數流量、維護方便、壽命長,對儀表前後直管段長度要求不高等優點。多年來,浮子流量計的各種優良性能和可靠性,以及較好的性能價格比,廣泛受到了石化、鋼鐵、電力、冶金、輕工、食品、製藥、水處理等行業的青睞。
1、原理
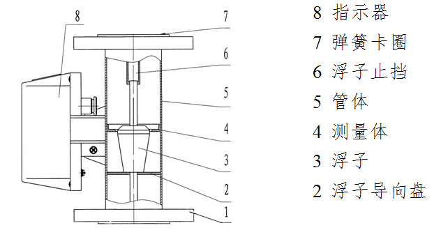
浮子流量計又稱轉子流量計,是變麵積式流量計的一種。浮子流量計實現流量測量的理論基礎是“定壓將,變麵積“原理。在流動的流體中放置一個軸線與流向平行的浮子,見圖1。

浮子流量計本體可以用兩端法蘭、螺紋或軟管與測量管道連接。當流體自下而上流入錐管時,被浮子截流,這樣在浮子上、下遊之間產生壓力差,浮子在壓力差的作用下上升,這時作用在浮子上的力有三個:流體對浮子的動壓力、浮子在流體中的浮力和浮子自身的重力。隻有當流體對浮子的動壓力與浮子在流體中所受的浮力之和等於浮子的重力時,浮子就平穩地浮在某一位置上。
大量實驗證明,在一定雷諾數的範圍內,對於同一口徑浮子流量計,流體流速的大小與浮子的形狀有關。對於給定的浮子流量計,浮子大小和形狀已經確定,因此它在流體中的浮力和自身重力都是已知是常量,唯有流體對浮子的動壓力是隨來流流速的大小而變化的。因此當來流流速變大或變小時,浮子將作向上或向下的移動,相應位置的流動截麵積也發生變化,流動截麵積與浮子的上升高度成比例,即浮子的某一高度代表流量的大小。浮子上下移動時,以磁耦合的形式將位置傳遞到外部指示器,直到流速變成平衡時對應的速度,浮子就在新的位置上穩定。對於一台給定的浮子流量計,浮子在測量管中的位置與流體流經測量管的流量的大小成一一對應關係。
為了使浮子在形管的中心線上下移動時不碰到管壁,通常采用兩種方法:一種是在浮子中心裝有一根導向芯棒,以保持浮子在錐形管的中心線作上下運動,另一種是在浮子圓盤邊緣開有一道道斜槽,當流體自下而上流過浮子時,一麵繞過浮子,同時又穿過斜槽產生一反推力,使浮子繞中心線不停地旋轉,就可保持浮子在工作時不致碰到管壁。浮子流量計的浮子材料可用不鏽鋼、鈦、316L等製成。
2 構成
浮子流量計是由浮子、錐管、檢測器等部件組成。浮子組件裝有磁鋼,其作用把是浮子的位移信號以磁信號的形式傳輸給檢測器。檢測器把這一檢測到的信號再以電信號的形式遠距離傳輸,並現場指示瞬時流量值。
浮子流量計具有小流量值、範圍度大、不用現場調試的特點。其結構簡單、運動部件磨損小、使用壽命長、壓力損失小、安裝方便、維修量小、使用周期長、可遠距離傳輸流量信號,與計算機連用可實現集中管理。
但也存在不足,如對於高黏度、大流量、以及兩相以上流體不能測量。

3、應用
由浮子流量計和流量顯示儀兩部分組成的流量儀表,其顯示儀為通用流量顯示儀表。與其它形式流量計比較,具有以下優點:流量計內部可動部件較少、構造簡單、使用壽命長;範圍度10:1;從理論上說不需單獨標定即可用於流量測量;儀表輸出電信號,易於實現數字化測量及計算機聯用;測量準確度可達±1%。現在國內外都在積*研究浮子流量計的開發和應用。浮子流量計的在應用時的流量計算如圖2。

P1、P2——端麵Ⅰ、Ⅱ上的平均壓力
V1、V2——端麵Ⅰ、Ⅱ上的平均流速
Z1、Z2——端麵Ⅰ、Ⅱ上距起始水平麵高度
F1——端麵Ⅰ的麵積
fk——端麵Ⅱ環隙麵積
F——浮子*大端麵麵積
ρf——浮子材料密度
ρ——流體介質密度
V——浮子體積
h——浮子位移
β——錐管半角
R——浮子位移h處錐管半徑
g——當地重力加速度
r——浮子*大半徑
浮子流量計的理論方程式是根據伯努利方程,流體連續性方程以及力平衡的原理推出。
根據伯努力方程有下式:
(1)
若設Z1≈Z2 (流量係數中予以修正)
則(1)式為
(2)
根據流體力學方程有下式:
(3)
又根據浮子的力平衡原理有下式:
(4)
有圖2可知,F1≈F,fk<<F1聯立解(2)、(3)、(4)式可得
(5)
因此,體積流量為:
(6)
質量流量為:
(7)
其中:α—流量係數,它是取決於浮子形狀、雷諾數以及上述各種標定條件的修正係數,由試驗確定。
浮子流量計在應用中要保證其測量準確度,就必須正確的安裝使用:
浮子流量計安裝地點選在無強電、磁場幹擾的環境;要求豎直安裝、傾斜度不大於2°,無機械振動,流體保持充滿管道;用於測量氣體時,為使流量計穩定工作,被測氣體壓力一般應大於0.1MPa;若被測氣體較髒或含有導磁顆粒時,應在流量計的上遊安裝過濾器或磁過濾器。浮子流量計的口徑與管道必須對應,法蘭之間的密封墊圈不得突入管內。
4、結語
浮子流量計作為過程控製儀表,可以適應高溫、高壓、強腐蝕、劇毒等多種苛刻環境,較少的可動部件、便於維護,解決了生產中的許多難題。正確合理的設計,浮子流量計以其卓越的性能被越來越多的用戶所青睞。展望未來,浮子流量計趨向電子化和數字化,將為其開拓新的領域;已逐步實現累計流量顯示、HART通訊等多項功能。

